Pershkrimi i Prones

📍 Green Hill Residence, Selitë – Tiranë
Disponojmë për shitje apartamente në një kompleks rezidencial të ri dhe modern.

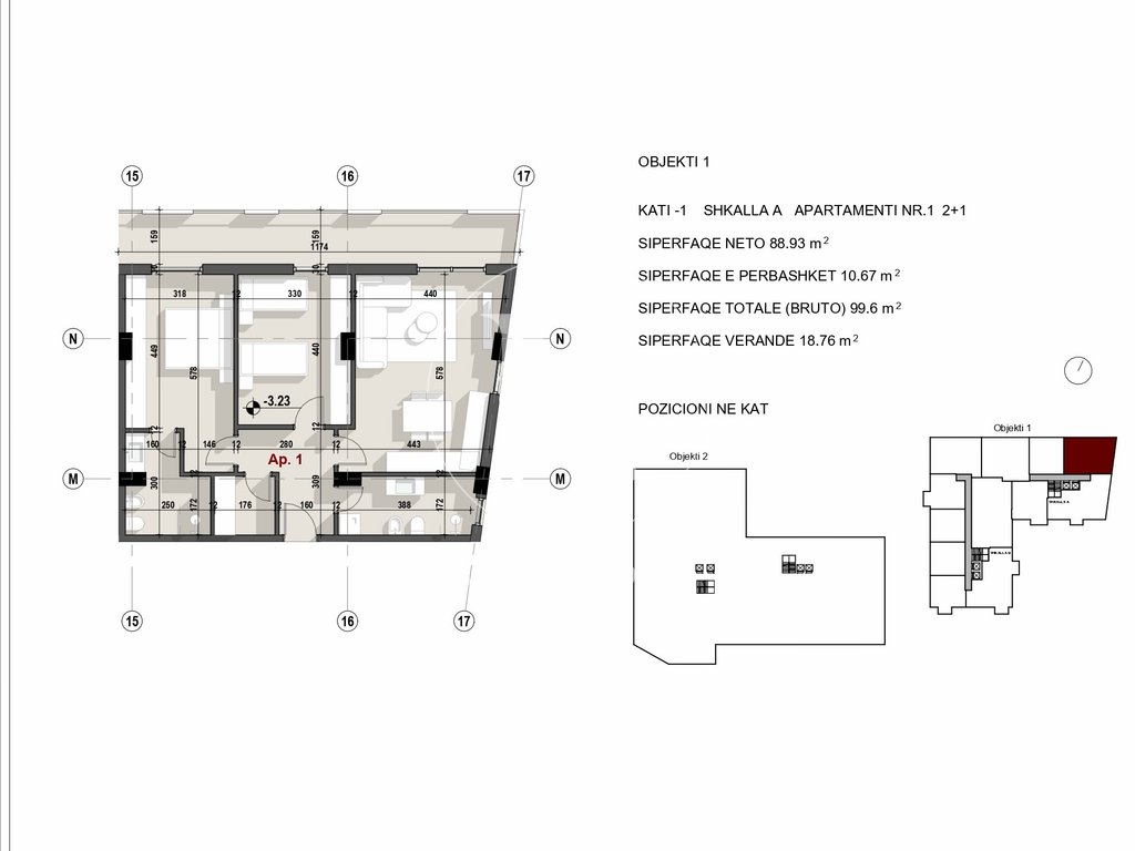
🔹 Tipologji: 1+1 dhe 2+1
🔹 Ndërtim i ri me standarde të larta
🔹 Arkitekturë moderne & organizim funksional
🔹 Zonë e qetë dhe e gjelbëruar, ideale për banim familjar
🔹Mundësi shumë e mirë investimi
🔹 Cmimi per m2 1550 euro
Veranda 1/2 e cmimit

Detajet e Prones

Referenca: PRO652
Lloji: Apartment
Statusi: New
Dhomat e gjumit: 2
Tualetet: 2
Dhomen e ndenjes 1
Shikime: 83
Sip. e brendshme: 89 m2
Sip. Totale: 100 m2